Proven safety solutions for a dangerous world.
Personalized bunkers, shelters and safety rooms.

Expertise in architectural and structural safety solutions.
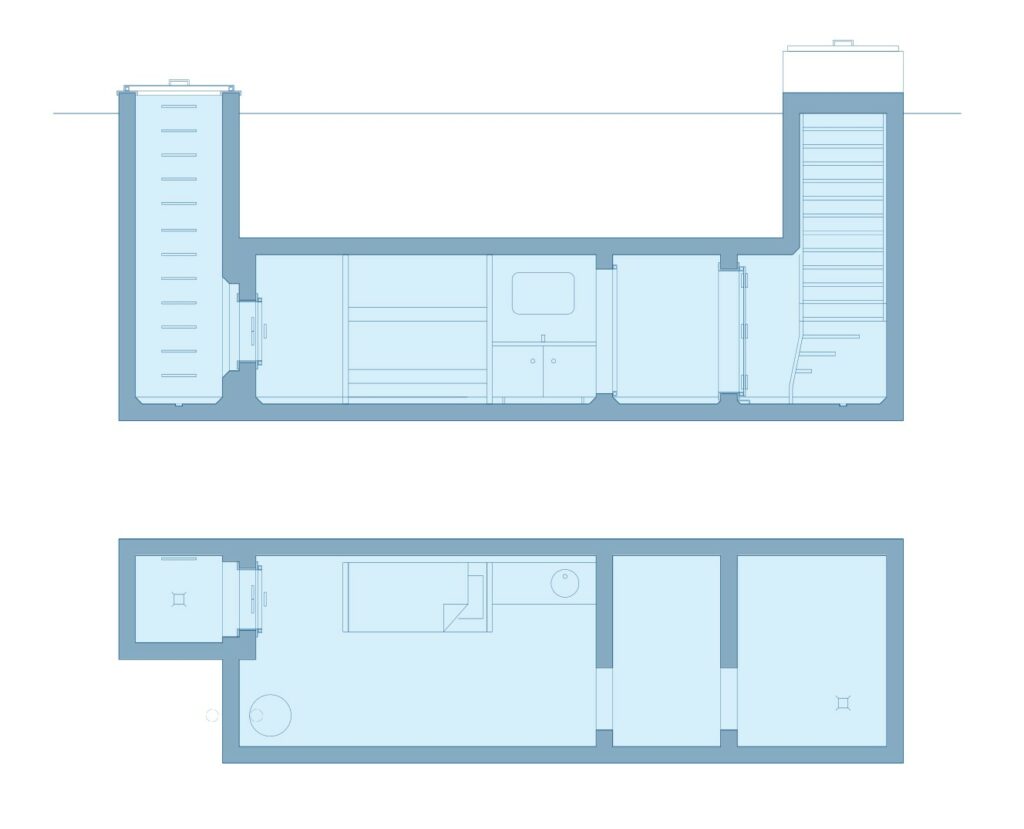
Our team of specialists in construction technology and materials science ensure safety standards more than adequate for today’s demanding reality. Blast resistant shell, radiation and kinetic penetration protection are a must for a modern compact and industrial shelters alike.

Shelters and bunkers for individuals, communities and municipal areas.
Our comprehensive suite of professional services caters to a diverse clientele, ranging from homeowners to commercial developers and municipalities.
Shelter for individuals and whole neighborhoods
- Individual solutions for small families.
- Bunkers under small and large residences.
- Community shelters and public solutions.

Proven Technology
- Safe construction with proven track record.
- Blast and radiation resistant protection.
- Civil and commercial safety standards.

“If you do not expect the unexpected, you will not recognize it when it arrives”

Heraclitus
Greek philosopher